Milano Negozio su strada con doppio accesso in zona Navigli – Via Pavia/Corso San Gottardo

In posizione strategica e di forte passaggio, proponiamo in vendita un negozio su strada situato in Via San Gottardo, una delle vie più dinamiche e commerciali della zona sud di Milano, a pochi passi dai Navigli e dall’Università Bocconi. L’area è ottimamente collegata al centro città grazie alla presenza di mezzi pubblici, piste ciclabili e rapidi collegamenti con la circonvallazione.
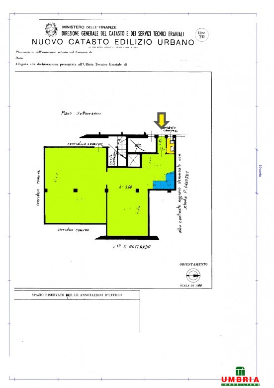
L’immobile gode di un comodo doppio accesso, con ingresso principale direttamente da Via San Gottardo e ingresso secondario condominiale da Via Pavia, caratteristica che lo rende particolarmente funzionale e adatto a diverse tipologie di attività commerciali o professionali. Il negozio si sviluppa su due livelli per una superficie complessiva di circa 156 mq, con spazi ben distribuiti, razionali e facilmente personalizzabili in base alle proprie esigenze. Le condizioni interne sono ottime e consentono un utilizzo immediato per attività di retail, showroom, studi professionali, servizi o, previa verifica, somministrazione.

Elemento di grande valore aggiunto è la possibilità di carico e scarico dal piano interrato, con collegamento diretto ai box condominiali, una soluzione rara e particolarmente apprezzata per la gestione logistica e operativa dell’attività. La zona garantisce alta visibilità, intenso passaggio pedonale e veicolare e la presenza consolidata di attività commerciali, residenze, uffici e locali, rendendo questa proposta un’ottima opportunità sia per utilizzo diretto sia come investimento a reddito. Soluzione ideale per chi è alla ricerca di un negozio funzionale, ben posizionato e con elevato potenziale commerciale.

"Le informazioni sono indicative e potrebbero contenere errori; non hanno valore contrattuale."
"Details are indicative and may contain errors; they are not contractually binding."

Milano | Navigli | € 550.000,00 | 156m²


Visualizza il 3d dell'appartamento

Corso San Gottardo - Via Pavia

annuncio numero: 1711

Caratteristiche principali:


  • Contratto: Vendita
  • Tipo Immobile: Negozio
  • Locali: 1
  • Stato Immobile: Buono
  • Anno: 1960
  • Piano: terra
  • Piani Edificio: 3
  • Bagni: 1
  • Esposizione: Doppia
  • Cantina: Si
  • Spese: € 430,00 mese
  • Riscaldamento: Centralizzato elementi
Prestazione Energetica Globale (EPgl)

D.M. 26/06/2015

  • Classe Energetica: C
  • Edificio a energia quasi zero:
  • EP Globale non rinnovabile:
    KW h/m2 anno
  • EP Globale rinnovabile:
    KW h/m2 anno
  • Inverno (Epi):

    😀 😐 😔

  • Estate (Epe):

    😀 😐 😔

Classe energetica

D.L. 192 del 19/08/05

  • C
  • kWh/m2a: 414.00

Per Maggiori informazioni su questo annuncio Contattateci: